Supporting Tube with HVI Conductor

High-voltage-resistant, insulated down conductor for maintaining the separation distance from electrically conductive components according to IEC/EN 62305-3. For use up to an equivalent separation distance s ≤ 75 cm (in air) or s ≤ 150 cm (solid material).
Optically optimised installation of the HVI Conductor inside the supporting tube creates less wind exposed surface.
Minimum order length 6 or 8 m. Conductor length has to be stated when ordering (steps of 0.5 m).
The conductor cannot be returned as it is made to order.

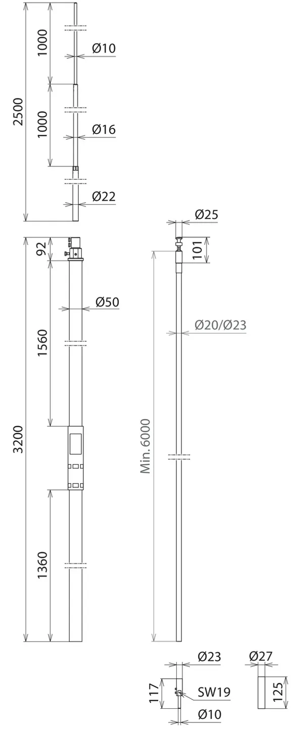
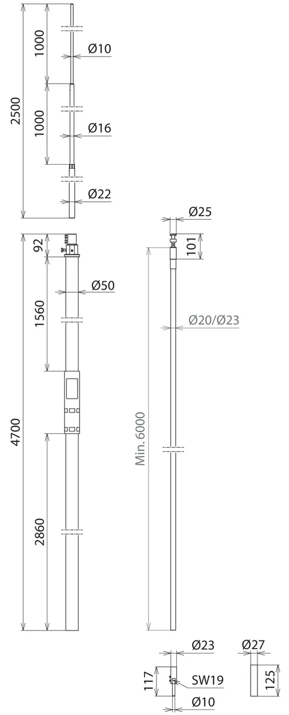
HVI Conductor in supporting tube with air-termination tip

With internal sealing end and air-termination tip, StSt, Ø10 mm, length 1000 mm.

2 Products

Part No. 819326 HVI 20 M L6M SR3200 IP FSP1000 GFK AL

GTIN 4013364260511, Customs tariff No. (EU): 85389099, Gross weight: 8.70 kg, PU: 1.00 pc(s)

Predecessor

Images

Additional information

HVI Conductor installed in the supporting tube with air-termination tip, black
HVI Conductor in the supporting tube
High-voltage-resistant insulated down
conductor for keeping the separation distance from
conductive parts according to EN 62305-3
Equivalent separation distance s =<75 cm (in air)
or s =< 150 cm (solid building material).
The supporting tubes with HVI Conductor are dimensioned according to Eurocode 1 (DIN EN 1991-1-4 + DIN EN 1991-1-4/NA) fo a max. gust wind speed of 237 km/h.
HVI Conductor integrated in the supporting tube, with special internal sealing end and air-termination tip (Ø10 mm), length of 1000 mm
Material of supporting tube: GRP / Al
Length of supporting tube: 3200 mm
Transport length: 3200 mm
Diameter Ø conductor: 20 mm
Colour of conductor: black ●
Material of conductor: Cu
Minimum order length: 6 m
Max. free length with air-termination tip (wall mounting): 3500 mm
Max. gust wind speed: (Max. free length 3,500 mm, 1x HVI inside) 237 km/h
Max. gust wind speed : (Max. free length 3,500 mm, 1x HVI outside) 227 km/h
Max. gust wind speed : (Max. free length 3,500 mm, 4x HVI outside) 200 km/h
Standard: DIN IEC/TS 62561-8 (VDE V 0185-561-8)

Brand: DEHN
Type: HVI 20 M L6M SR3200 IP FSP1000 GFK AL
Part No.: 819326
or equivalent.

 

Technical data

Material of supporting tube GRP / Al
Length of supporting tube 3200 mm
Transport length 3200 mm
Outside diameter Ø 50 mm
Diameter Ø conductor 20 mm
Colour of conductor black ●
Material of conductor Cu
Minimum order length 6 m
Max. free length with air-termination tip (wall mounting) 3500 mm
Standard DIN IEC/TS 62561-8 (VDE V 0185-561-8)

Product 819326 was added to Notepad.

Product 819326 was added to the cart.

Part No. 819336 HVI 23 L6M SR3200 IP FSP1000 GFK AL

GTIN 4013364241237, Customs tariff No. (EU): 85389099, Gross weight: 10.90 kg, PU: 1.00 pc(s)

Predecessor

Images

Additional information

HVI Conductor installed in the supporting tube with air-termination tip, grey
HVI Conductor in the supporting tube
High-voltage-resistant insulated down
conductor for keeping the separation distance from
conductive parts according to EN 62305-3
Equivalent separation distance s =<75 cm (in air)
or s =< 150 cm (solid building material).
The supporting tubes with HVI Conductor are dimensioned according to Eurocode 1 (DIN EN 1991-1-4 + DIN EN 1991-1-4/NA) fo a max. gust wind speed of 237 km/h.
HVI Conductor integrated in the supporting tube, with special internal sealing end and air-termination tip (Ø10 mm), length of 1000 mm
Material of supporting tube: GRP / Al
Length of supporting tube: 3200 mm
Transport length: 3200 mm
Diameter Ø conductor: 23 mm
Colour of conductor: grey ●
Material of conductor: Cu
Minimum order length: 6 m
Max. free length with air-termination tip (wall mounting): 3500 mm
Max. gust wind speed: (Max. free length 3,500 mm, 1x HVI grey inside) 237 km/h
Max. gust wind speed : (Max. free length 3,500 mm, 1x HVI grey outside) 225 km/h
Max. gust wind speed : (Max. free length 3,500 mm, 4x HVI grey outside) 194 km/h
Standard: DIN IEC/TS 62561-8 (VDE V 0185-561-8)

Brand: DEHN
Type: HVI 23 L6M SR3200 IP FSP1000 GFK AL
Part No.: 819336
or equivalent.

Certificates

 

Technical data

Material of supporting tube GRP / Al
Length of supporting tube 3200 mm
Transport length 3200 mm
Outside diameter Ø 50 mm
Diameter Ø conductor 23 mm
Colour of conductor grey
Material of conductor Cu
Minimum order length 6 m
Max. free length with air-termination tip (wall mounting) 3500 mm
Standard DIN IEC/TS 62561-8 (VDE V 0185-561-8)

Product 819336 was added to Notepad.

Product 819336 was added to the cart.


HVI Conductor in supporting tube with air-termination rod

With internal sealing end and air-termination rod, Al, Ø22 / 16 / 10 mm, length 2,500 mm.

4 Products

Part No. 819328 HVI 20 M L6M SR3200 IP RFS2500 GFK AL

GTIN 4013364260504, Customs tariff No. (EU): 85389099, Gross weight: 9.10 kg, PU: 1.00 pc(s)

Predecessor

Images

Additional information

HVI Conductor in supporting tube with air-termination rod Colour black
HVI Conductor in the supporting tube
High-voltage-resistant, insulated down conductor
for maintaining the separation distance
from electrically conductive parts
as per DIN EN 62305-3 (VDE 0185-305-3)
Equivalent separation distance s =< 75 cm (in air)
or s =< 150 cm (solid material).
The supporting tubes with HVI conductors are dimensioned to
Eurocode 1 (DIN EN 1991-1-4 + DIN EN 1991-1-4/NA) for a
max. gust wind speed of 189 km/h.
HVI Conductor integrated in the supporting tube, with special internal
sealing end and air-termination rod (Ø22/16/10 mm), length of 2,500 mm
Material of supporting tube: GRP / Al
Length of supporting tube: 3200 mm
Transport length: 3200 mm
Diameter Ø conductor: 20 mm
Colour of conductor: black ●
Material of conductor: Cu
Minimum order length: 6 m
Max. free length with air-termination rod (wall mounting): 5000 mm
Max. gust wind speed: (Max. free length 5,000 mm, 1x HVI inside) 189 km/h
Max. gust wind speed : (Max. free length 5,000 mm, 1x HVI outside) 176 km/h
Max. gust wind speed : (Max. free length 5,000 mm, 4x HVI outside) 156 km/h
Standard: DIN IEC/TS 62561-8 (VDE V 0185-561-8)

Brand: DEHN
Type: HVI 20 M L6M SR3200 IP RFS2500 GFK AL
Part No.: 819328
or equivalent.

Certificates

 

Technical data

Material of supporting tube GRP / Al
Length of supporting tube 3200 mm
Transport length 3200 mm
Outside diameter Ø 50 mm
Diameter Ø conductor 20 mm
Colour of conductor black ●
Material of conductor Cu
Minimum order length 6 m
Max. free length with air-termination rod (wall mounting) 5000 mm
Standard DIN IEC/TS 62561-8 (VDE V 0185-561-8)

Product 819328 was added to Notepad.

Product 819328 was added to the cart.

Part No. 819338 HVI 23 L6M SR3200 IP RFS2500 GFK AL

GTIN 4013364241244, Customs tariff No. (EU): 85389099, Gross weight: 11.30 kg, PU: 1.00 pc(s)

Predecessor

Images

Additional information

HVI Conductor in supporting tube with air-termination rod Colour: grey
HVI Conductor in the supporting tube
High-voltage-resistant, insulated down conductor
for maintaining the separation distance
from electrically conductive parts
as per DIN EN 62305-3 (VDE 0185-305-3)
Equivalent separation distance s =< 75 cm (in air)
or s =< 150 cm (solid material).
The supporting tubes with HVI conductors are dimensioned to
Eurocode 1 (DIN EN 1991-1-4 + DIN EN 1991-1-4/NA) for a
max. gust wind speed of 189 km/h.
HVI Conductor integrated in the supporting tube, with special internal
sealing end and air-termination rod (Ø22/16/10 mm), length of 2,500 mm
Material of supporting tube: GRP / Al
Length of supporting tube: 3200 mm
Transport length: 3200 mm
Diameter Ø conductor: 23 mm
Colour of conductor: grey ●
Material of conductor: Cu
Minimum order length: 6 m
Max. free length with air-termination rod (wall mounting): 5000 mm
Max. gust wind speed: (Max. free length 5,000 mm, 1x HVI grey inside) 189 km/h
Max. gust wind speed : (Max. free length 5,000 mm, 1x HVI grey outside) 173 km/h
Max. gust wind speed : (Max. free length 5,000 mm, 4x HVI grey outside) 151 km/h
Standard: DIN IEC/TS 62561-8 (VDE V 0185-561-8)

Brand: DEHN
Type: HVI 23 L6M SR3200 IP RFS2500 GFK AL
Part No.: 819338
or equivalent.

Certificates

 

Technical data

Material of supporting tube GRP / Al
Length of supporting tube 3200 mm
Transport length 3200 mm
Outside diameter Ø 50 mm
Diameter Ø conductor 23 mm
Colour of conductor grey
Material of conductor Cu
Minimum order length 6 m
Max. free length with air-termination rod (wall mounting) 5000 mm
Standard DIN IEC/TS 62561-8 (VDE V 0185-561-8)

Product 819338 was added to Notepad.

Product 819338 was added to the cart.

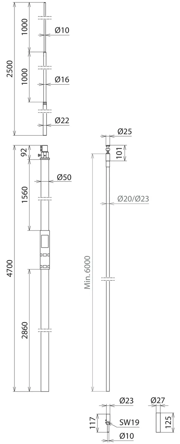
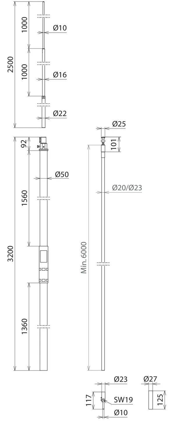
Part No. 819426 HVI 20 M L6M SR4700 IP RFS2500 GFK AL

GTIN 4013364260474, Customs tariff No. (EU): 85389099, Gross weight: 11.60 kg, PU: 1.00 pc(s)


Images

Additional information

HVI Conductor in supporting tube with air-termination rod Colour black
HVI Conductor in the supporting tube
High-voltage-resistant, insulated down conductor
for maintaining the separation distance
from electrically conductive parts
as per DIN EN 62305-3 (VDE 0185-305-3)
Equivalent separation distance s =< 75 cm (in air)
or s =< 150 cm (solid material).
The supporting tubes with HVI conductors are dimensioned to
Eurocode 1 (DIN EN 1991-1-4 + DIN EN 1991-1-4/NA) for a
max. gust wind speed of 184 km/h.
HVI Conductor integrated in the supporting tube, with special internal
sealing end and air-termination rod (Ø22/16/10 mm), length of 2,500 mm
Material of supporting tube: GRP / Al
Length of supporting tube: 4700 mm
Transport length: 4700 mm
Diameter Ø conductor: 20 mm
Colour of conductor: black ●
Material of conductor: Cu
Minimum order length: 6 m
Max. free length with air-termination rod (wall mounting): 5500 mm
Max. gust wind speed: (Max. free length 5,500 mm, 1x HVI inside) 184 km/h
Max. gust wind speed : (Max. free length 5,500 mm, 1x HVI outside) 151 km/h
Max. gust wind speed : (Max. free length 5,500 mm, 4x HVI outside) 139 km/h
Standard: DIN IEC/TS 62561-8 (VDE V 0185-561-8)

Brand: DEHN
Type: HVI 20 M L6M SR4700 IP RFS2500 GFK AL
Part No.: 819426
or equivalent.

 

Technical data

Material of supporting tube GRP / Al
Length of supporting tube 4700 mm
Transport length 4700 mm
Outside diameter Ø 50 mm
Diameter Ø conductor 20 mm
Colour of conductor black ●
Material of conductor Cu
Minimum order length 6 m
Max. free length with air-termination rod (wall mounting) 5500 mm
Standard DIN IEC/TS 62561-8 (VDE V 0185-561-8)

Product 819426 was added to Notepad.

Product 819426 was added to the cart.

Part No. 819438 HVI 23 L6M SR4700 IP RFS2500 GFK AL

GTIN 4013364241251, Customs tariff No. (EU): 85389099, Gross weight: 13.80 kg, PU: 1.00 pc(s)


Images

Additional information

HVI Conductor in supporting tube with air-termination rod Colour: grey
HVI Conductor in the supporting tube
High-voltage-resistant, insulated down conductor
for maintaining the separation distance
from electrically conductive parts
as per DIN EN 62305-3 (VDE 0185-305-3)
Equivalent separation distance s =< 75 cm (in air)
or s =< 150 cm (solid material).
The supporting tubes with HVI conductors are dimensioned to
Eurocode 1 (DIN EN 1991-1-4 + DIN EN 1991-1-4/NA) for a
max. gust wind speed of 184 km/h.
HVI Conductor integrated in the supporting tube, with special internal
sealing end and air-termination rod (Ø22/16/10 mm), length of 2,500 mm
Material of supporting tube: GRP / Al
Length of supporting tube: 4700 mm
Transport length: 4700 mm
Diameter Ø conductor: 23 mm
Colour of conductor: grey ●
Material of conductor: Cu
Minimum order length: 6 m
Max. free length with air-termination rod (wall mounting): 5500 mm
Max. gust wind speed: (Max. free length 5,500 mm, 1x HVI grey inside) 184 km/h
Max. gust wind speed : (Max. free length 5,500 mm, 1x HVI grey outside) 149 km/h
Max. gust wind speed : (Max. free length 5,500 mm, 4x HVI grey outside) 137 km/h
Standard: DIN IEC/TS 62561-8 (VDE V 0185-561-8)

Brand: DEHN
Type: HVI 23 L6M SR4700 IP RFS2500 GFK AL
Part No.: 819438
or equivalent.

Certificates

 

Technical data

Material of supporting tube GRP / Al
Length of supporting tube 4700 mm
Transport length 4700 mm
Outside diameter Ø 50 mm
Diameter Ø conductor 23 mm
Colour of conductor grey
Material of conductor Cu
Minimum order length 6 m
Max. free length with air-termination rod (wall mounting) 5500 mm
Standard DIN IEC/TS 62561-8 (VDE V 0185-561-8)

Product 819438 was added to Notepad.

Product 819438 was added to the cart.


HVI Conductor in supporting tube (side outlet) with air-termination tip and small tripod

With internal sealing end and air-termination tip, StSt, Ø10 mm, length 1,000 mm.
With tripod (part no. 107 390).

2 Products

Part No. 819371 HVI 20M L6M SR3200 SA FSP1000 AL DBS V2A

GTIN 4013364260498, Customs tariff No. (EU): 85389099, Gross weight: 19.10 kg, PU: 1.00 pc(s)


Images

Additional information

HVI Conductor in the supporting tube with air-termination tip / air-termination rod, black colour
HVI Conductor in the supporting tube
High-voltage-resistant, insulated down conductor
for maintaining the separation distance
from electrically conductive parts
as per DIN EN 62305-3 (VDE 0185-305-3)
Equivalent separation distance s =< 75 cm (in air)
or s =< 150 cm (solid material).
The supporting tubes with HVI Conductor and tripod
are dimensioned according to Eurocode 1 (DIN EN 1991-1-4 + DIN EN 1991-1-4/NA).
HVI Conductor installed in the supporting tube, with special internal
sealing end and air-termination tip, Ø10 mm, length 1,000 mm.
With tripod (part no. 107 390).
Material of supporting tube: GRP / Al
Length of supporting tube: 3200 mm
Transport length: 3200 mm
Diameter Ø conductor: 20 mm
Colour of conductor: black ●
Material of conductor: Cu
Radius of tripod: 680 mm
Space required for tripod: 1175 x 1020 mm
Minimum order length: 6 m
Standard: DIN IEC/TS 62561-8 (VDE V 0185-561-8)

Brand: DEHN
Type: HVI 20M L6M SR3200 SA FSP1000 AL DBS V2A
Part No.: 819371
or equivalent.

 

Technical data

Material of supporting tube GRP / Al
Length of supporting tube 3200 mm
Transport length 3200 mm
Outside diameter Ø 50 mm
Diameter Ø conductor 20 mm
Colour of conductor black ●
Material of conductor Cu
Radius of tripod 680 mm
Space required for tripod 1175 x 1020 mm
Minimum order length 6 m
Standard DIN IEC/TS 62561-8 (VDE V 0185-561-8)

Product 819371 was added to Notepad.

Product 819371 was added to the cart.

Part No. 819381 HVI 23 L6M SR3200 SA FSP1000 AL DBS V2A

GTIN 4013364241954, Customs tariff No. (EU): 85389099, Gross weight: 21.30 kg, PU: 1.00 pc(s)


Images

Additional information

HVI Conductor in the supporting tube with air-termination tip / air-termination rod, grey colour
HVI Conductor in the supporting tube
High-voltage-resistant, insulated down conductor
for maintaining the separation distance
from electrically conductive parts
as per DIN EN 62305-3 (VDE 0185-305-3)
Equivalent separation distance s =< 75 cm (in air)
or s =< 150 cm (solid material).
The supporting tubes with HVI Conductor and tripod are dimensioned according to
Eurocode 1 (DIN EN 1991-1-4 + DIN EN 1991-1-4/NA)
HVI Conductor installed in the supporting tube, with special internal
sealing end and air-termination tip, Ø10 mm, length 1,000 mm.
With tripod (part no. 107 390).
Material of supporting tube: GRP / Al
Length of supporting tube: 3200 mm
Transport length: 3200 mm
Diameter Ø conductor: 23 mm
Colour of conductor: grey ●
Material of conductor: Cu
Radius of tripod: 680 mm
Space required for tripod: 1175 x 1020 mm
Minimum order length: 6 m
Standard: DIN IEC/TS 62561-8 (VDE V 0185-561-8)

Brand: DEHN
Type: HVI 23 L6M SR3200 SA FSP1000 AL DBS V2A
Part No.: 819381
or equivalent.

 

Technical data

Material of supporting tube GRP / Al
Length of supporting tube 3200 mm
Transport length 3200 mm
Outside diameter Ø 50 mm
Diameter Ø conductor 23 mm
Colour of conductor grey
Material of conductor Cu
Radius of tripod 680 mm
Space required for tripod 1175 x 1020 mm
Minimum order length 6 m
Standard DIN IEC/TS 62561-8 (VDE V 0185-561-8)

Product 819381 was added to Notepad.

Product 819381 was added to the cart.


HVI Conductor in supporting tube (side outlet) with air-termination rod and small tripod

With internal sealing end and air-termination rod, Al, Ø22 / 16 / 10 mm, length 2,500 mm.
With tripod (part no. 107 390).

2 Products

Part No. 819373 HVI 20M L6M SR3200 SA RFS2500 AL DBS V2A

GTIN 4013364260481, Customs tariff No. (EU): 85389099, Gross weight: 20.10 kg, PU: 1.00 pc(s)


Images

Additional information

HVI Conductor in the supporting tube with air-termination rod / air-termination tip, black colour
HVI Conductor in the supporting tube
high-voltage-resistant, insulated down conductor
for maintaining the separation distance
from electrically conductive parts
as per DIN EN 62305-3 (VDE 0185-305-3).
Equivalent separation distance s =< 75 cm (in air)
or s =< 150 cm (solid material).
The supporting tubes with HVI Conductor and tripod
are dimensioned according to Eurocode 1 (DIN EN 1991-1-4 + DIN EN 1991-1-4/NA).
HVI Conductor integrated in the supporting tube, with special internal
sealing end and air-termination rod (Ø22/16/10 mm), length of 2,500 mm.
With tripod (part no. 107 390).
Material of supporting tube: GRP / Al
Length of supporting tube: 3200 mm
Transport length: 3200 mm
Diameter Ø conductor: 20 mm
Colour of conductor: black ●
Material of conductor: Cu
Radius of tripod: 680 mm
Space required for tripod: 1175 x 1020 mm
Minimum order length: 6 m
Standard: DIN IEC/TS 62561-8 (VDE V 0185-561-8)

Brand: DEHN
Type: HVI 20M L6M SR3200 SA RFS2500 AL DBS V2A
Part No.: 819373
or equivalent.

 

Technical data

Material of supporting tube GRP / Al
Length of supporting tube 3200 mm
Transport length 3200 mm
Outside diameter Ø 50 mm
Diameter Ø conductor 20 mm
Colour of conductor black ●
Material of conductor Cu
Radius of tripod 680 mm
Space required for tripod 1175 x 1020 mm
Minimum order length 6 m
Standard DIN IEC/TS 62561-8 (VDE V 0185-561-8)

Product 819373 was added to Notepad.

Product 819373 was added to the cart.

Part No. 819383 HVI 23 L6M SR3200 SA RFS2500 AL DBS V2A

GTIN 4013364241961, Customs tariff No. (EU): 85389099, Gross weight: 22.30 kg, PU: 1.00 pc(s)


Images

Additional information

HVI Conductor in the supporting tube with air-termination tip / air-termination rod, grey colour
HVI Conductor in the supporting tube
high-voltage-resistant, insulated down conductor
for maintaining the separation distance
from electrically conductive parts
as per DIN EN 62305-3 (VDE 0185-305-3).
Equivalent separation distance s =< 75 cm (in air)
or s =< 150 cm (solid material).
The supporting tubes with HVI Conductor and tripod are dimensioned according to
Eurocode 1 (DIN EN 1991-1-4 + DIN EN 1991-1-4/NA).
HVI Conductor integrated in the supporting tube, with special internal
sealing end and air-termination rod (Ø22/16/10 mm), length of 2,500 mm.
With tripod (part no. 105 790).
Material of supporting tube: GRP / Al
Length of supporting tube: 3200 mm
Transport length: 3200 mm
Diameter Ø conductor: 23 mm
Colour of conductor: grey ●
Material of conductor: Cu
Radius of tripod: 680 mm
Space required for tripod: 1175 x 1020 mm
Minimum order length: 6 m
Standard: DIN IEC/TS 62561-8 (VDE V 0185-561-8)

Brand: DEHN
Type: HVI 23 L6M SR3200 SA RFS2500 AL DBS V2A
Part No.: 819383
or equivalent.

 

Technical data

Material of supporting tube GRP / Al
Length of supporting tube 3200 mm
Transport length 3200 mm
Outside diameter Ø 50 mm
Diameter Ø conductor 23 mm
Colour of conductor grey
Material of conductor Cu
Radius of tripod 680 mm
Space required for tripod 1175 x 1020 mm
Minimum order length 6 m
Standard DIN IEC/TS 62561-8 (VDE V 0185-561-8)

Product 819383 was added to Notepad.

Product 819383 was added to the cart.


HVI Conductor in supporting tube (side outlet) with air-termination rod and large tripod

With internal sealing end and air-termination rod, Al, Ø22 / 16 / 10 mm, length 2,500 mm.
With tripod (part no. 107 391).

2 Products

Part No. 819473 HVI 20M L6M SR4700 SA RFS2500 AL DBS V2A

GTIN 4013364260450, Customs tariff No. (EU): 85389099, Gross weight: 37.80 kg, PU: 1.00 pc(s)


Images

Additional information

HVI Conductor in the supporting tube with air-termination rod and large tripod
HVI Conductor in the supporting tube
high-voltage-resistant, insulated down conductor
for maintaining the separation distance
from electrically conductive parts
as per DIN EN 62305-3 (VDE 0185-305-3).
Equivalent separation distance s =< 75 cm (in air)
or s =< 150 cm (solid material).
The supporting tubes with HVI Conductor and tripod
are dimensioned according to Eurocode 1 (DIN EN 1991-1-4 + DIN EN 1991-1-4/NA).
HVI Conductor integrated in the supporting tube, with special internal
sealing end and air-termination rod (Ø22/16/10 mm), length of 2,500 mm.
With tripod (part no. 107 391).
Material of supporting tube: GRP / Al
Length of supporting tube: 4700 mm
Transport length: 4700 mm
Diameter Ø conductor: 20 mm
Colour of conductor: black ●
Material of conductor: Cu
Radius of tripod: 1330 mm
Space required for tripod: 2300 x 1995 mm
Minimum order length: 6 m
Standard: DIN IEC/TS 62561-8 (VDE V 0185-561-8)

Brand: DEHN
Type: HVI 20M L6M SR4700 SA RFS2500 AL DBS V2A
Part No.: 819473
or equivalent.

 

Technical data

Material of supporting tube GRP / Al
Length of supporting tube 4700 mm
Transport length 4700 mm
Outside diameter Ø 50 mm
Diameter Ø conductor 20 mm
Colour of conductor black ●
Material of conductor Cu
Radius of tripod 1330 mm
Space required for tripod 2300 x 1995 mm
Minimum order length 6 m
Standard DIN IEC/TS 62561-8 (VDE V 0185-561-8)

Product 819473 was added to Notepad.

Product 819473 was added to the cart.

Part No. 819483 HVI 23 L6M SR4700 SA RFS2500 AL DBS V2A

GTIN 4013364241978, Customs tariff No. (EU): 85389099, Gross weight: 40.00 kg, PU: 1.00 pc(s)


Images

Additional information

HVI Conductor in the supporting tube with air-termination rod and large tripod
HVI Conductor in the supporting tube
high-voltage-resistant, insulated down conductor
for maintaining the separation distance
from electrically conductive parts
as per DIN EN 62305-3 (VDE 0185-305-3).
Equivalent separation distance s =< 75 cm (in air)
or s =< 150 cm (solid material).
The supporting tubes with HVI Conductor and tripod
are dimensioned according to Eurocode 1 (DIN EN 1991-1-4 + DIN EN 1991-1-4/NA).
HVI Conductor integrated in the supporting tube, with special internal
sealing end and air-termination rod (Ø22/16/10 mm), length of 2,500 mm.
With tripod (part no. 107 391).
Material of supporting tube: GRP / Al
Length of supporting tube: 4700 mm
Transport length: 4700 mm
Diameter Ø conductor: 23 mm
Colour of conductor: grey ●
Material of conductor: Cu
Radius of tripod: 1330 mm
Space required for tripod: 2300 x 1995 mm
Minimum order length: 6 m
Standard: DIN IEC/TS 62561-8 (VDE V 0185-561-8)

Brand: DEHN
Type: HVI 23 L6M SR4700 SA RFS2500 AL DBS V2A
Part No.: 819483
or equivalent.

 

Technical data

Material of supporting tube GRP / Al
Length of supporting tube 4700 mm
Transport length 4700 mm
Outside diameter Ø 50 mm
Diameter Ø conductor 23 mm
Colour of conductor grey
Material of conductor Cu
Radius of tripod 1330 mm
Space required for tripod 2300 x 1995 mm
Minimum order length 6 m
Standard DIN IEC/TS 62561-8 (VDE V 0185-561-8)

Product 819483 was added to Notepad.

Product 819483 was added to the cart.


back to top