Teleskopierbare Fangstangen freistehend bis 8 m

Fangstangen freistehend mit klappbarem Drei- oder Vierbeinstativ zum Schutz von größeren Dachaufbauten und Anpassung an die Dachneigung bis max. 10°.

Der stapelbare Betonsockel (Gewicht 17 kg / Art.-Nr. 102 010) und die Unterlegplatte (Art.-Nr. 102 050) sind separat zu bestellen.

Hinweis: Zulässige Dachlasten sind zu beachten und gegebenenfalls mit dem Gebäudeerrichter abzuklären.

Mit St/tZn Stativ

3 Products

Part No. 105711 FS T D40 1.5 5.2M AL DBS RA560 STTZN

GTIN 4013364500976, Customs tariff No. (EU): 85389099, Gross weight: 13.79 kg, PU: 1.00 Stk.


Images

Additional information

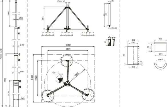
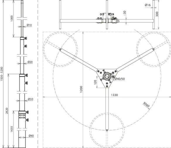
Fangstange freistehend Höhe 5200mm
Teleskopierbare Fangstangen freistehend
mit klappbarem Dreibeinstativ
zum Schutz von größeren Dachaufbauten
mit Anpassung an die Dachneigung bis max. 10 Grad
Die Fangstangen sind nach Eurocode 1
(DIN EN 1991-1-4 + DIN EN 1991-1-4/NA) dimensioniert
für eine max. Böenwindgeschwindigkeit
von 149 km/h bis 183 km/h dimensioniert
je nach ausgezogener Fangspitze und Anzahl Betonsockel
zum Errichten mit Betonsockel (Gewicht 17 kg)
Stapelbare Betonsockel (Art.-Nr. 102 010)
Unterlegplatte (Art.-Nr. 102 050)
sind separat zu bestellen
Höhe: 5200 mm
Radius: 560 mm
Platzbedarf Stativ: 1210 x 1340 mm
Werkstoff Stativ: St/tZn
Werkstoff Fangmast: Al

Fabrikat: DEHN
Typ: FS T D40 1.5 5.2M AL DBS RA560 STTZN
Art.-Nr.: 105711
oder gleichwertig.

 

Technical data

Höhe 5200 mm
Fangspitze (Ø Länge) 10-1000 mm
Fangmast (Ø Länge) 40/30/20-4200 mm
Radius 560 mm
Platzbedarf Stativ 1210 x 1340 mm
Werkstoff Stativ St/tZn
Werkstoff Fangmast Al
Normenbezug DIN EN 62561-(1+2)

Product 105711 was added to Notepad.

Product 105711 was added to the cart.

Part No. 105713 FS T D50 1.6 6.5M AL DBS RA1435 STTZN

GTIN 4013364501041, Customs tariff No. (EU): 85389099, Gross weight: 26.32 kg, PU: 1.00 Stk.


Images

Additional information

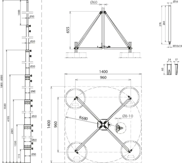
Fangstange freistehend Höhe 6500mm
Teleskopierbare Fangstangen freistehend
mit Abstrebung und klappbarem Dreibeinstativ
zum Schutz von größeren Dachaufbauten
mit Anpassung an die Dachneigung bis max. 10 Grad
Die Fangstangen sind nach Eurocode 1
(DIN EN 1991-1-4 + DIN EN 1991-1-4/NA) dimensioniert
für eine max. Böenwindgeschwindigkeit
von 149 km/h bis 189 km/h dimensioniert
je nach ausgezogener Fangspitze und Anzahl Betonsockel
zum Errichten mit Betonsockel (Gewicht 17 kg)
Stapelbare Betonsockel (Art.-Nr. 102 010)
Unterlegplatte (Art.-Nr. 102 050)
sind separat zu bestellen
Höhe: 6500 mm
Radius: 1435 mm
Platzbedarf Stativ: 2850 x 2530 mm
Werkstoff Stativ: St/tZn
Werkstoff Fangmast: Al

Fabrikat: DEHN
Typ: FS T D50 1.6 6.5M AL DBS RA1435 STTZN
Art.-Nr.: 105713
oder gleichwertig.

 

Technical data

Höhe 6500 mm
Fangspitze (Ø Länge) 10-1000 mm
Fangmast (Ø Länge) 50/40/30/20-5500 mm
Radius 1435 mm
Platzbedarf Stativ 2850 x 2530 mm
Werkstoff Stativ St/tZn
Werkstoff Fangmast Al
Normenbezug DIN EN 62561-(1+2)

Product 105713 was added to Notepad.

Product 105713 was added to the cart.

Part No. 105716 FS T D50 1.8 8.0M AL DBS RA1435 STTZN

GTIN 4013364501072, Customs tariff No. (EU): 85389099, Gross weight: 29.28 kg, PU: 1.00 Stk.


Images

Additional information

Fangstange freistehend Höhe 8000mm
Teleskopierbare Fangstangen freistehend
mit Abstrebung und klappbarem Dreibeinstativ
zum Schutz von größeren Dachaufbauten
mit Anpassung an die Dachneigung bis max. 10 Grad
Die Fangstangen sind nach Eurocode 1
(DIN EN 1991-1-4 + DIN EN 1991-1-4/NA) dimensioniert
für eine max. Böenwindgeschwindigkeit
von 147 km/h bis 149 km/h dimensioniert
je nach ausgezogener Fangspitze und Anzahl Betonsockel
zum Errichten mit Betonsockel (Gewicht 17 kg)
Stapelbare Betonsockel (Art.-Nr. 102 010)
Unterlegplatte (Art.-Nr. 102 050)
sind separat zu bestellen
Höhe: 8000 mm
Radius: 1435 mm
Platzbedarf Stativ: 2850 x 2530 mm
Werkstoff Stativ: St/tZn
Werkstoff Fangmast: Al

Fabrikat: DEHN
Typ: FS T D50 1.8 8.0M AL DBS RA1435 STTZN
Art.-Nr.: 105716
oder gleichwertig.

Certificates

 

Technical data

Höhe 8000 mm
Fangspitze (Ø Länge) 10-1000 mm
Fangmast (Ø Länge) 50/60/50/40/30/20-7000 mm
Radius 1435 mm
Platzbedarf Stativ 2850 x 2530 mm
Werkstoff Stativ St/tZn
Werkstoff Fangmast Al
Normenbezug DIN EN 62561-(1+2)

Product 105716 was added to Notepad.

Product 105716 was added to the cart.


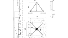
Mit NIRO Stativ

4 Products

Part No. 105710 FS T D40 1.5 5.2M AL DBS RA680 V2A

GTIN 4013364500969, Customs tariff No. (EU): 85389099, Gross weight: 12.58 kg, PU: 1.00 Stk.


Images

Additional information

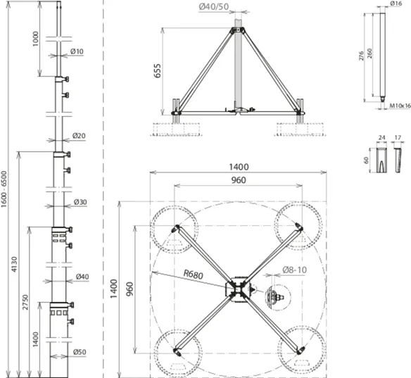
Fangstange freistehend Höhe 5200mm
Teleskopierbare Fangstangen freistehend
mit Dreibeinstativ klein NIRO (Ausführung klappbar)
zum Schutz von größeren Dachaufbauten
mit Adapterset zur Durchmesseränderung D50 auf D40mm
Ausgleich Dachneigungwinkel bis max. 10°
Die Fangstangen sind nach Eurocode 1
(DIN EN 1991-1-4 + DIN EN 1991-1-4/NA) dimensioniert
für eine max. Böenwindgeschwindigkeit
von 149 km/h bis 191 km/h dimensioniert
je nach ausgezogener Fangspitze und Anzahl Betonsockel
zum Errichten mit Betonsockel (Gewicht 17 kg)
Sockelhalterset (Art.-Nr. 107 396)
Stapelbare Betonsockel (Art.-Nr. 102 010)
Unterlegplatte (Art.-Nr. 102 050)
sind separat zu bestellen
Höhe: 5200 mm
Radius: 680 mm
Platzbedarf Stativ: 1400 x 1600 mm
Werkstoff Stativ: NIRO
Werkstoff Fangmast: Al

Fabrikat: DEHN
Typ: FS T D40 1.5 5.2M AL DBS RA680 V2A
Art.-Nr.: 105710
oder gleichwertig.

 

Technical data

Höhe 5200 mm
Fangspitze (Ø Länge) 10-1000 mm
Fangmast (Ø Länge) 40/30/20-4200 mm
Radius 680 mm
Platzbedarf Stativ 1400 x 1600 mm
Werkstoff Stativ NIRO
Werkstoff Fangmast Al
Normenbezug DIN EN 62561-(1+2)

Product 105710 was added to Notepad.

Product 105710 was added to the cart.

Part No. 105712 FS T D50 1.6 6.5M AL VBS RA680 V2A

GTIN 4013364500983, Customs tariff No. (EU): 85389099, Gross weight: 16.77 kg, PU: 1.00 Stk.


Images

Additional information

Fangstange freistehend Höhe 6500mm
Teleskopierbare Fangstangen freistehend
mit Vierbeinstativ klein NIRO (Ausführung klappbar)
zum Schutz von größeren Dachaufbauten
Ausgleich Dachneigungwinkel bis max. 10°
Die Fangstangen sind nach Eurocode 1
(DIN EN 1991-1-4 + DIN EN 1991-1-4/NA) dimensioniert
für eine max. Böenwindgeschwindigkeit
von 149 km/h bis 189 km/h dimensioniert
je nach ausgezogener Fangspitze und Anzahl Betonsockel
zum Errichten mit Betonsockel (Gewicht 17 kg)
Sockelhalterset (Art.-Nr. 107 396)
Stapelbare Betonsockel (Art.-Nr. 102 010)
Unterlegplatte (Art.-Nr. 102 050)
sind separat zu bestellen
Höhe: 6500 mm
Radius: 680 mm
Platzbedarf Stativ: 1400 x 1400 mm
Werkstoff Stativ: NIRO
Werkstoff Fangmast: Al

Fabrikat: DEHN
Typ: FS T D50 1.6 6.5M AL VBS RA680 V2A
Art.-Nr.: 105712
oder gleichwertig.

 

Technical data

Höhe 6500 mm
Fangspitze (Ø Länge) 10-1000 mm
Fangmast (Ø Länge) 50/40/30/20-5500 mm
Radius 680 mm
Platzbedarf Stativ 1400 x 1400 mm
Werkstoff Stativ NIRO
Werkstoff Fangmast Al
Normenbezug DIN EN 62561-(1+2)

Product 105712 was added to Notepad.

Product 105712 was added to the cart.

Part No. 105714 FS T D50 1.8 8.0M AL VBS RA680 V2A

GTIN 4013364501058, Customs tariff No. (EU): 85389099, Gross weight: 19.95 kg, PU: 1.00 Stk.


Images

Additional information

Fangstange freistehend Höhe 8000mm
Teleskopierbare Fangstangen freistehend
mit Vierbeinstativ klein NIRO (Ausführung klappbar)
zum Schutz von größeren Dachaufbauten
Ausgleich Dachneigungwinkel bis max. 10°
Die Fangstangen sind nach Eurocode 1
(DIN EN 1991-1-4 + DIN EN 1991-1-4/NA) dimensioniert
für eine max. Böenwindgeschwindigkeit
von 140 km/h bis 150 km/h dimensioniert
je nach ausgezogener Fangspitze und Anzahl Betonsockel
zum Errichten mit Betonsockel (Gewicht 17 kg)
Sockelhalterset (Art.-Nr. 107 396)
Stapelbare Betonsockel (Art.-Nr. 102 010)
Unterlegplatte (Art.-Nr. 102 050)
sind separat zu bestellen
Höhe: 8000 mm
Radius: 680 mm
Platzbedarf Stativ: 1400 x 1400 mm
Werkstoff Stativ: NIRO
Werkstoff Fangmast: Al

Fabrikat: DEHN
Typ: FS T D50 1.8 8.0M AL VBS RA680 V2A
Art.-Nr.: 105714
oder gleichwertig.

 

Technical data

Höhe 8000 mm
Fangspitze (Ø Länge) 10-1000 mm
Fangmast (Ø Länge) 50/60/50/40/30/20-7000 mm
Radius 680 mm
Platzbedarf Stativ 1400 x 1400 mm
Werkstoff Stativ NIRO
Werkstoff Fangmast Al
Normenbezug DIN EN 62561-(1+2)

Product 105714 was added to Notepad.

Product 105714 was added to the cart.

Part No. 105715 FS T D50 1.8 8.0M AL VBS RA1330 V2A

GTIN 4013364501065, Customs tariff No. (EU): 85389099, Gross weight: 30.45 kg, PU: 1.00 Stk.


Images

Additional information

Fangstange freistehend Höhe 8000mm
Teleskopierbare Fangstangen freistehend
mit Vierbeinstativ groß NIRO (Ausführung klappbar)
zum Schutz von größeren Dachaufbauten
Ausgleich Dachneigungwinkel bis max. 10°
Die Fangstangen sind nach Eurocode 1
(DIN EN 1991-1-4 + DIN EN 1991-1-4/NA) dimensioniert
für eine max. Böenwindgeschwindigkeit
von 155 km/h bis 170 km/h dimensioniert
je nach ausgezogener Fangspitze und Anzahl Betonsockel
zum Errichten mit Betonsockel (Gewicht 17 kg)
Sockelhalterset (Art.-Nr. 107 396)
Stapelbare Betonsockel (Art.-Nr. 102 010)
Unterlegplatte (Art.-Nr. 102 050)
sind separat zu bestellen
Höhe: 8000 mm
Radius: 1330 mm
Platzbedarf Stativ: 2300 x 2300 mm
Werkstoff Stativ: NIRO
Werkstoff Fangmast: Al

Fabrikat: DEHN
Typ: FS T D50 1.8 8.0M AL VBS RA1330 V2A
Art.-Nr.: 105715
oder gleichwertig.

 

Technical data

Höhe 8000 mm
Fangspitze (Ø Länge) 10-1000 mm
Fangmast (Ø Länge) 50/60/50/40/30/20-7000 mm
Radius 1330 mm
Platzbedarf Stativ 2300 x 2300 mm
Werkstoff Stativ NIRO
Werkstoff Fangmast Al
Normenbezug DIN EN 62561-(1+2)

Product 105715 was added to Notepad.

Product 105715 was added to the cart.


back to top