Fangmast für HVI light plus Leitung auf Flachdächern

Komplettes Set bestehend aus Fangspitze / -stange, Stützrohr, Befestigungsset (inkl. Anschlussplatte, Kunststoffhaltern, Kabelbinder und PA-Abgriff) und Stativ.
Mit Anpassung an die Dachneigung bis max. 10°.
Die Betonsockel (Gewicht 17 kg) und die Unterlegplatten sind separat zu bestellen.

Fangmast mit Dreibeinstativ klein und Fangspitze

2 Products

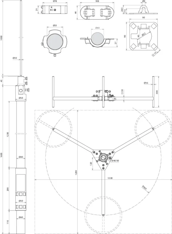
Part No. 819685 FM D40 L2200 GFK AL V2A DBS R320 STTZN

GTIN 4013364494459, Customs tariff No. (EU): 85389099, Gross weight: 6.34 kg, PU: 1.00 Stk.


Images

Additional information

Fangmaste für HVI light plus Leitung auf Flachdächer
komplett mit 4-fach Anschlussplatte für die
HVI light plus Leitung und Befestigungsset zur Montage
der Leitung am Fangmast
Zum Einhalten des Trennungsabstand zu elektrisch
leitenden Teilen nach DIN EN 62305-3 (VDE 0185-305-3)
Isolierstrecke aus glasfaserverstärktem Kunststoff (GFK)
Rohr Ø40 mm
Materialfaktor km = 0,7
Farbe lichtgrau, UV-stabilisiert
Fangmaste dimensioniert nach
Eurocode 1 (DIN EN 1991-1-4 + DIN EN 1991-1-4/NA)
Anpassung an die Dachneigung bis max. 10 Grad
Fangmast für HVI light plus Leitung
Höhe gesamt 2200 mm
Der stapelbare Betonsockel (Art.-Nr. 102 010) und die
Unterlegplatte (Art.-Nr. 102 050) sind separat zu bestellen
Werkstoff Stativ: St/tZn
Radius Stativ: 320 mm
Werkstoff Stützrohr: GFK / Al
Länge Stützrohr: 1600 mm
Isolierstrecke: 1230 mm
Länge Fangspitze: 500 mm
Werkstoff Fangspitze: NIRO
Normenbezug: DIN IEC/TS 62561-8 (VDE V 0185-561-8)

Fabrikat: DEHN
Typ: FM D40 L2200 GFK AL V2A DBS R320 STTZN
Art.-Nr.: 819685
oder gleichwertig.

Certificates

 

Technical data

Höhe 2200 mm
Werkstoff Stativ St/tZn
Radius Stativ 320 mm
Werkstoff Stützrohr GFK / Al
Länge Stützrohr 1600 mm
Länge Fangspitze 500 mm
Werkstoff Fangspitze NIRO
Normenbezug DIN IEC/TS 62561-8 (VDE V 0185-561-8)

Product 819685 was added to Notepad.

Product 819685 was added to the cart.

Part No. 819690 FM D40 L2700 GFK AL V2A DBS R320 STTZN

GTIN 4013364494466, Customs tariff No. (EU): 85389099, Gross weight: 6.61 kg, PU: 1.00 Stk.


Images

Additional information

Fangmaste für HVI light plus Leitung auf Flachdächer
komplett mit 4-fach Anschlussplatte für die
HVI light plus Leitung und Befestigungsset zur Montage
der Leitung am Fangmast
Zum Einhalten des Trennungsabstand zu elektrisch
leitenden Teilen nach DIN EN 62305-3 (VDE 0185-305-3)
Isolierstrecke aus glasfaserverstärktem Kunststoff (GFK)
Rohr Ø40 mm
Materialfaktor km = 0,7
Farbe lichtgrau, UV-stabilisiert
Fangmaste dimensioniert nach
Eurocode 1 (DIN EN 1991-1-4 + DIN EN 1991-1-4/NA)
Anpassung an die Dachneigung bis max. 10 Grad
Fangmast für HVI light plus Leitung
Höhe gesamt 2700 mm
Der stapelbare Betonsockel (Art.-Nr. 102 010) und die
Unterlegplatte (Art.-Nr. 102 050) sind separat zu bestellen.
Werkstoff Stativ: St/tZn
Radius Stativ: 320 mm
Werkstoff Stützrohr: GFK / Al
Länge Stützrohr: 1600 mm
Isolierstrecke: 1230 mm
Länge Fangspitze: 1000 mm
Werkstoff Fangspitze: NIRO
Normenbezug: DIN IEC/TS 62561-8 (VDE V 0185-561-8)

Fabrikat: DEHN
Typ: FM D40 L2700 GFK AL V2A DBS R320 STTZN
Art.-Nr.: 819690
oder gleichwertig.

Certificates

 

Technical data

Höhe 2700 mm
Werkstoff Stativ St/tZn
Radius Stativ 320 mm
Werkstoff Stützrohr GFK / Al
Länge Stützrohr 1600 mm
Länge Fangspitze 1000 mm
Werkstoff Fangspitze NIRO
Normenbezug DIN IEC/TS 62561-8 (VDE V 0185-561-8)

Product 819690 was added to Notepad.

Product 819690 was added to the cart.


Fangmast mit Dreibeinstativ groß und Fangspitze

1 Product

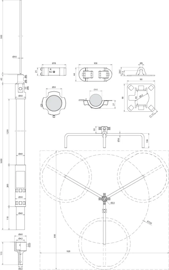
Part No. 819682 FM D40 L2700 GFK AL V2A DBS R560 STTZN

GTIN 4013364494428, Customs tariff No. (EU): 85389099, Gross weight: 12.86 kg, PU: 1.00 Stk.


Images

Additional information

Fangmaste für HVI light plus Leitung auf Flachdächer
komplett mit 4-fach Anschlussplatte für die
HVI light Leitung und Befestigungsset zur Montage
der Leitung am Fangmast.
Zum Einhalten des Trennungsabstand zu elektrisch
leitenden Teilen nach DIN EN 62305-3 (VDE 0185-305-3)
Isolierstrecke aus glasfaserverstärktem Kunststoff (GFK)
Rohr Ø40 mm
Materialfaktor km = 0,7
Farbe lichtgrau, UV-stabilisiert
Die Fangmaste sind nach
Eurocode 1 (DIN EN 1991-1-4 + DIN EN 1991-1-4/NA) für eine
max. Böenwindgeschwindigkeit von 200 km/h dimensioniert.
Anpassung an die Dachneigung bis max. 10 Grad
Fangmast für HVI light plus Leitung
Höhe gesamt 2700 mm
Der stapelbare Betonsockel (Art.-Nr. 102 010) und die
Unterlegplatte (Art.-Nr. 102 050) sind separat zu bestellen.
Werkstoff Stativ: St/tZn
Radius Stativ: 560 mm
Werkstoff Stützrohr: GFK / Al
Länge Stützrohr: 1600 mm
Isolierstrecke: 1230 mm
Länge Fangspitze: 1000 mm
Werkstoff Fangspitze: NIRO
Normenbezug: DIN IEC/TS 62561-8 (VDE V 0185-561-8)

Fabrikat: DEHN
Typ: FM D40 L2700 GFK AL V2A DBS R560 STTZN
Art.-Nr.: 819682
oder gleichwertig.

Certificates

 

Technical data

Höhe 2700 mm
Werkstoff Stativ St/tZn
Radius Stativ 560 mm
Werkstoff Stützrohr GFK / Al
Länge Stützrohr 1600 mm
Länge Fangspitze 1000 mm
Werkstoff Fangspitze NIRO
Normenbezug DIN IEC/TS 62561-8 (VDE V 0185-561-8)

Product 819682 was added to Notepad.

Product 819682 was added to the cart.


Fangmast mit Dreibeinstativ groß und Fangstange

2 Products

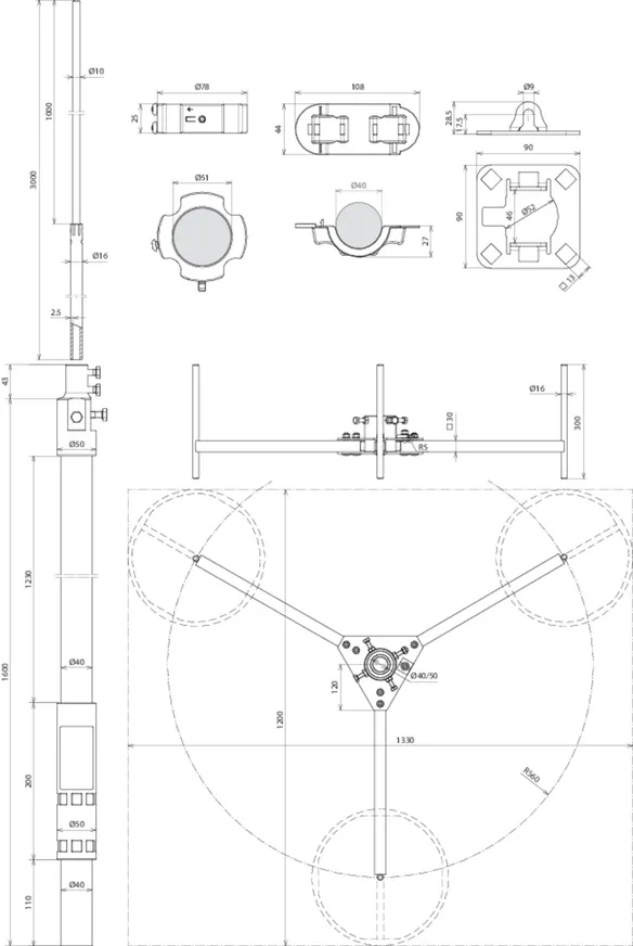
Part No. 819687 FM D40 L3700 GFK AL DBS R560 STTZN

GTIN 4013364494435, Customs tariff No. (EU): 85389099, Gross weight: 13.02 kg, PU: 1.00 Stk.


Images

Additional information

Fangmaste für HVI light plus Leitung auf Flachdächer
komplett mit 4-fach Anschlussplatte für die
HVI light plus Leitung und Befestigungsset zur Montage
der Leitung am Fangmast
Zum Einhalten des Trennungsabstand zu elektrisch
leitenden Teilen nach DIN EN 62305-3 (VDE 0185-305-3)
Isolierstrecke aus glasfaserverstärktem Kunststoff (GFK)
Rohr Ø40 mm
Materialfaktor km = 0,7
Farbe lichtgrau, UV-stabilisiert
Die Fangmaste sind nach
Eurocode 1 (DIN EN 1991-1-4 + DIN EN 1991-1-4/NA) für eine
max. Böenwindgeschwindigkeit von 159 km/h dimensioniert.
Anpassung an die Dachneigung bis max. 10 Grad
Fangmast 40 für HVI light plus Leitung
Höhe gesamt 3700 mm
Der stapelbare Betonsockel (Art.-Nr. 102 010) und die
Unterlegplatte (Art.-Nr. 102 050) sind separat zu bestellen
Werkstoff Stativ: St/tZn
Radius Stativ: 560 mm
Werkstoff Stützrohr: GFK / Al
Länge Stützrohr: 1600 mm
Isolierstrecke: 1230 mm
Länge Fangstange: 2000 mm
Werkstoff Fangstange: AlMgSi
Normenbezug: DIN IEC/TS 62561-8 (VDE V 0185-561-8)

Fabrikat: DEHN
Typ: FM D40 L3700 GFK AL DBS R560 STTZN
Art.-Nr.: 819687
oder gleichwertig.

Certificates

 

Technical data

Höhe 3700 mm
Werkstoff Stativ St/tZn
Radius Stativ 560 mm
Werkstoff Stützrohr GFK / Al
Länge Stützrohr 1600 mm
Länge Fangstange 2000 mm
Werkstoff Fangstange AlMgSi
Normenbezug DIN IEC/TS 62561-8 (VDE V 0185-561-8)

Product 819687 was added to Notepad.

Product 819687 was added to the cart.

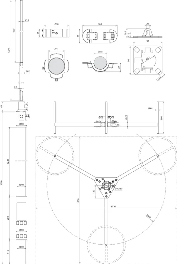
Part No. 819680 FM D40 L4700 GFK AL DBS R560 STTZN

GTIN 4013364494442, Customs tariff No. (EU): 85389099, Gross weight: 13.06 kg, PU: 1.00 Stk.


Images

Additional information

Fangmaste für HVI light plus Leitung auf Flachdächer
komplett mit 4-fach Anschlussplatte für die
HVI light plus Leitung und Befestigungsset zur Montage
der Leitung am Fangmast
Zum Einhalten des Trennungsabstand zu elektrisch
leitenden Teilen nach DIN EN 62305-3 (VDE 0185-305-3)
Isolierstrecke aus glasfaserverstärktem Kunststoff (GFK)
Rohr Ø40 mm
Materialfaktor km = 0,7
Farbe lichtgrau, UV-stabilisiert
Die Fangmaste sind nach
Eurocode 1 (DIN EN 1991-1-4 + DIN EN 1991-1-4/NA) für eine
max. Böenwindgeschwindigkeit von 99 km/h dimensioniert.
Anpassung an die Dachneigung bis max. 10 Grad
Fangmast 40 für HVI light plus Leitung
Höhe gesamt 4700 mm
Der stapelbare Betonsockel (Art.-Nr. 102 010) und die
Unterlegplatte (Art.-Nr. 102 050) sind separat zu bestellen.
Werkstoff Stativ: St/tZn
Radius Stativ: 560 mm
Werkstoff Stützrohr: GFK / Al
Länge Stützrohr: 1600 mm
Isolierstrecke: 1230 mm
Länge Fangstange: 3000 mm
Werkstoff Fangstange: AlMgSi
Normenbezug: DIN IEC/TS 62561-8 (VDE V 0185-561-8)

Fabrikat: DEHN
Typ: FM D40 L4700 GFK AL DBS R560 STTZN
Art.-Nr.: 819680
oder gleichwertig.

Certificates

 

Technical data

Höhe 4700 mm
Werkstoff Stativ St/tZn
Radius Stativ 560 mm
Werkstoff Stützrohr GFK / Al
Länge Stützrohr 1600 mm
Länge Fangstange 3000 mm
Werkstoff Fangstange AlMgSi
Normenbezug DIN IEC/TS 62561-8 (VDE V 0185-561-8)

Product 819680 was added to Notepad.

Product 819680 was added to the cart.


back to top